Quadrilocale in vendita

Pescantina, Via Lora
€ 270.000
4 locali 4 locali
216 Mq 216 Mq
1 bagno 1 bagno

Quadrilocale in vendita

Pescantina, Via Lora

Descrizione annuncio

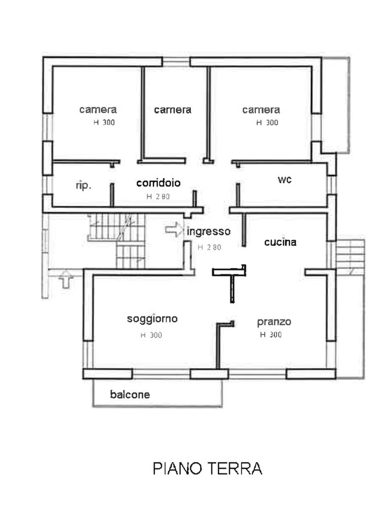
Appartamento al piano rialzato con giardino, in palazzina di sole due unità.

L'immobile, dotato anche di un ingresso indipendente, è così distribuito: spaziosa zona giorno, divisa tra cucina abitabile e salone che si apre su un giardino privato, due camere matrimoniali, una singola, un bagno finestrato, tre balconi e un ripostiglio.

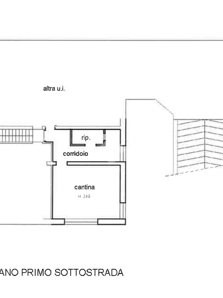
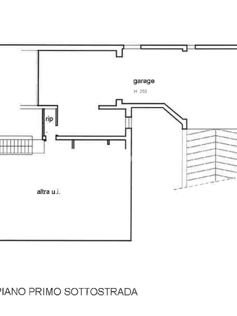
Completano la proprietà una cantina che può essere adibita a taverna ed un ampio garage dov'è possibile parcheggiare due o più auto.

La posizione strategica, a due passi dai principali servizi, rende questa soluzione abitativa particolarmente comoda per la vita quotidiana.

Costruito nel 1965, l'immobile è stato in parte ristrutturato negli anni novanta e rappresenta un'opportunità unica per famiglie o coppie che desiderano vivere in un contesto tranquillo e riservato, senza rinunciare alle comodità che il paese offre.

Mostra tutto

Nelle vicinanze

Trasporto pubblico Trasporto pubblico
Pescantina
Pescantina
1,4 Km
S.Vito al Mantico - Via Piemonte
S.Vito al Mantico - Via Piemonte
1,2 Km
San Vito al Mantico
San Vito al Mantico
1,3 Km
Ricariche auto elettriche Ricariche auto elettriche
EVBILITY - stazione di Bussolengo
2,5 Km
Eneldrive Municipio di Bussolengo
2,6 Km
Scuole Scuole
Asilo Nido
490 m
Scuola Elementare
1,1 Km
Scuola Media
1,2 Km
Scuola Elementare comunale
2,0 Km
Scuola Elementare Citella
2,1 Km
Farmacia Farmacia
Farmacia
840 m
Farmacia Titton Paola
1,5 Km
Farmacia Balconi
1,6 Km
Farmacia Settimo Miglio
2,0 Km
Farmacia Comunale "San Martino"
2,0 Km
Ospedali Ospedali
Ospedale Orlandi
2,3 Km
Supermercati Supermercati
Sigma
580 m
Martinelli
2,0 Km
Eurospin
2,0 Km
LIDL
2,1 Km
Conad
2,5 Km
Negozi Negozi
Panificio Alessia
730 m
L'Albero Alimenti Bio
1,2 Km
Negozi
1,5 Km
Il Quadrante
2,1 Km
Sorelle Ramonda
2,3 Km
Bar Bar
Mixup
610 m
Movie
630 m
Bar
1,0 Km
Roxy
1,1 Km
Chiaroscuro Cafè
1,2 Km
Ristoranti Ristoranti
Rosso Peperone
580 m
Piccola locanda
710 m
Zorba
810 m
Osteria "da Felisse"
890 m
La Tonda
1,2 Km
Mostra tutto

Caratteristiche

Rif.:
61191231
Piano:
Rialzato di 2
Totale piani:
2
Box:
2
Balconi:
3
Camere da letto:
3
Mostra tutto
Prezzo Prezzo
€ 270.000
Rata mutuo Rata mutuo
€ 1.273 / mese
Spese annue Spese annue
€ 0
Proponi il tuo prezzoProponi il tuo prezzo

Classe Energetica

Questo immobile è esente da classe energetica
Anno di costruzione:
1965
Riscaldamento:
Autonomo
Tipo impianto:
A radiatori
Tipo alimentazione:
Metano

Ti interessa visionare l'immobile?

Fissa un appuntamento  Fissa un appuntamento

Richiedi informazioni

Clicca su Leggi per aprire l'informativa
* Questi campi sono obbligatori

Calcola il tuo mutuo

Semplice e senza impegno
Anticipo

( % )
Mutuo

( % )

pochi semplici passi

inserisci i tuoi dati
Questionario completato
Grazie per aver richiesto un appuntamento senza impegno con un nostro Consulente del Credito e Assicurativo.

Hai inserito correttamente tutti i dati necessari e a breve riceverai una e-mail con un link da convalidare per inviare i tuoi dati.
Affiliato
Immobiliare Pescantina Srl
Via Ponte, 16 37026 Pescantina (VR)

Il nostro staff


  • Massimo Fiorio
    Affiliato

  • Cinzia Forante
    Collaboratrice

  • Nives Gualteroni
    Collaboratrice

  • Elisa Gaspari
    Collaboratrice

  • Alberto Caldera
    Affiliato
Via Ponte, 16 37026 Pescantina (VR)
Zona: Pescantina
Mostra su mappa
Affiliato
Immobiliare Pescantina Srl
Via Ponte, 16 37026 Pescantina (VR)

2026 Tecnocasa Franchising S.p.A. - P. IVA 08365160152 - Via Monte Bianco 60/A 20089 Rozzano (MI). Ogni agenzia ha un proprio titolare ed è autonoma. Privacy policy | Policy utilizzo | Cookie policy